The Sullivan Building History and Restoration Study
Newark, OH
<< Back to Project List
Noted American Architect Louis Sullivan designed the Home Building Association Company bank in 1914 as one of his eight Midwestern community banks. Due to their ornate features, these “jewel box” banks are among the most treasured architectural gems in America. These jewel box banks are prime examples of Sullivan’s mission and struggle to create a uniquely American form of architecture. Late in his career, all of Sullivan’s thoughts, philosophies, and experience were packed into these small bank projects, which were virtually his only commissions from 1906 to 1920. Sullivan was from Chicago, many of the project participants, vendors, suppliers, and artisans were Sullivan's hand-picked team from Chicago.

Prominently located across the street from the county courthouse in the heart of downtown Newark, the building served the community for over 110 years as a financial institution, a meat market, a jewelry store, and an ice cream parlor. Alterations were made by each tenant, including the destructive reconfiguration of the original main entrance to create a new diagonal corner entrance and the removal of terra cotta units below the lower south facing windows to accommodate taller showcase windows. The volume of the ornate banking hall was cut in half by the installation of an eight-foot-high ceiling and some of the exquisite interior painted murals were destroyed or removed from the banking hall. The Sullivan Building stood vacant for nearly two decades.

In 2013, the Licking County Foundation (LCF) was offered the building as a gift. Recognizing the importance of the building in the history of American architecture, and due to its critical location and cultural importance in the heart of downtown Newark, the LCF accepted the gift and also accepted the challenge to restore this national landmark. LCF commissioned RKA in 2015 to conduct a Physical Assessment & Stabilization Plan, and to prepare a Historic Structure Report at the request of a charitable foundation that was considering providing major grant funding for the project. RKA's completion of the Historic Structure Report, and coordination with this foundation, led to this foundation ultimately providing $1.9 million in matching funding. RKA assisted in fundraising efforts for the project by providing preliminary budgets, campaign materials, project documentation, and community presentations that resulted in raising over $14 million from foundations, public grants, tax credits, and private donors.

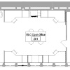
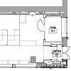
With their mission of developing tourism, welcoming visitors, and promoting local attractions and businesses, Explore Licking County was identified as the future tenant for The Sullivan Building. RKA created Conceptual Designs for the building’s use as a hub for tourism and community gatherings. In early discussions, RKA informed LCF that they should pursue the purchase of one of the adjacent buildings, to allow space for an elevator and code compliant stair, so that these items would not have to be inserted detrimentally into The Sullivan Building spaces. This led to the acquisition of The Annex which essentially made this project functionally viable.

Read more about The Sullivan Building Exterior Restoration.

Read more about The Sullivan Building Interior Restoration and Annex.